The Oak Street Residence

Oak Street Residence

Nestled in the serene residential area of Teshie Nungua Estate, The Oak Street Residence boasts of 3.5-bedroom carefully curated townhomes with lush green outdoor spaces. This exclusive estate has spaces generously proportioned and will provide your family with modern functional living

Property Details

STATUS:

AREA:

LOCATION:

TYPE:

BEDROOMS:

BATHROOMS:

LIVING ROOMS:

STARTING PRICE:

In-Progress

235 sqm

Teshie Nungua Estate

Town House

3.5

3.5

1

$ 250,000.00 USD

Panoramic windows

Multiple bathrooms

Private terrace

Designer finishing

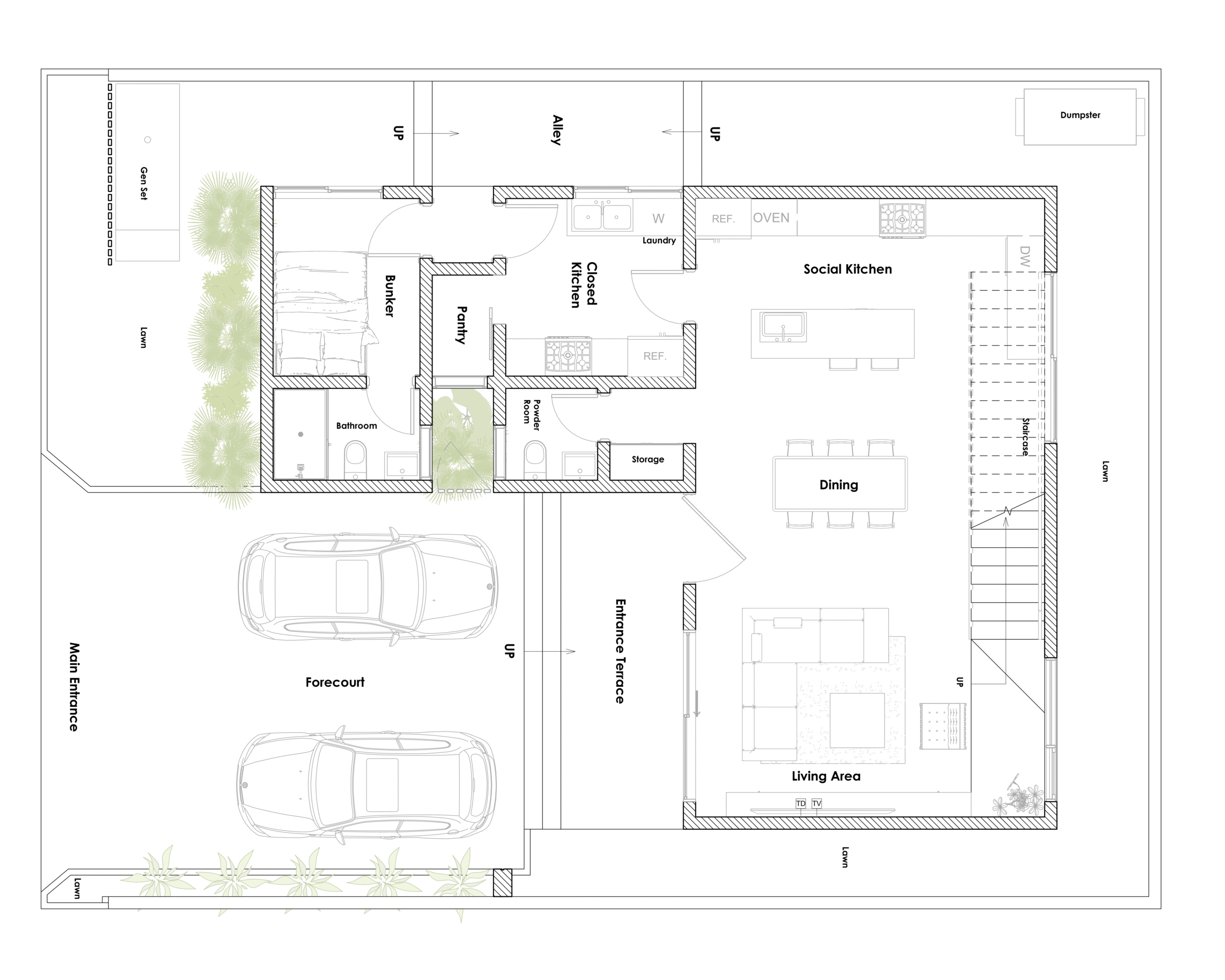
Floor Plans